
Moat Brae from front, with modernist additions at either end.
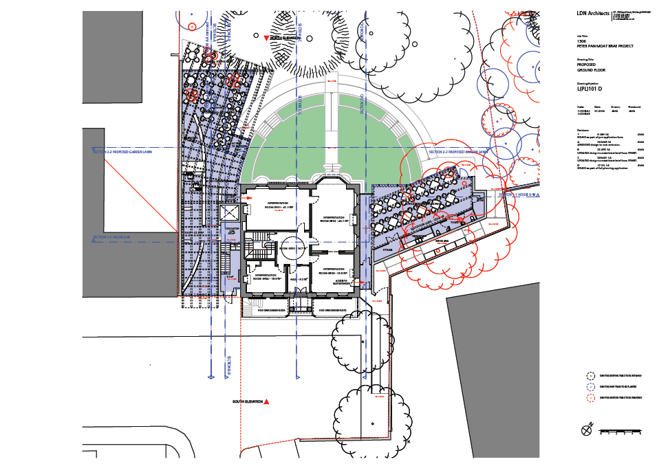
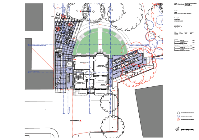
Here are three images of the modernist plan for Moat Brae, in Dumfries, Scotland, whose garden inspired Neverland. It is now threatened with fairly typical additions in an unsympathetic style. I was unable to get my hands on these images in time for my column “Help save history and Peter Pan” on the subject last week, so here they are.

Rear view of Moat Brae with addtions.

Here is the plan for the Moat Brae additions.
About David Brussat
This blog was begun in 2009 as a feature of the Providence Journal, where I was on the editorial board and wrote a weekly column of architecture criticism for three decades. Architecture Here and There fights the style wars for classical architecture and against modern architecture, no holds barred.
History Press asked me to write and in August 2017 published my first book, "Lost Providence." I am now writing my second book.
My freelance writing on architecture and other topics addresses issues of design and culture locally and globally.
I am a member of the board of the New England chapter of the Institute of Classical Architecture & Art, which bestowed an Arthur Ross Award on me in 2002.
I work from Providence, R.I., where I live with my wife Victoria, my son Billy and our cat Gato.
If you would like to employ my writing and editing to improve your work, please email me at my consultancy, dbrussat@gmail.com, or call 401.351.0457.
Testimonial: "Your work is so wonderful - you now enter my mind and write what I
would have written."
- Nikos Salingaros, mathematician at the University of Texas, architectural theorist and author of many books.